Розыгрыш призов для проектировщиков!

Хомут DUOFIT

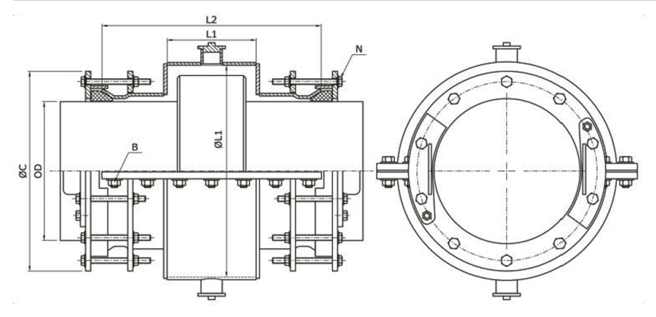
КОРПУС МУФТЫ 
Центральный корпус изготовлен из стали, что обеспечивает идеальную посадку конических уплотнительных прокладок.

ЗАЖИМНЫЕ КОЛЬЦА
Стальные зажимные кольца предназначены для зажима уплотнительной прокладки к поверхности трубы при затяжке болтов.

УПЛОТНИТЕЛЬНАЯ ПРОКЛАДКА
Радиальная уплотнительная прокладка находится внутри корпуса муфты и идеально садится на поверхность трубы. Это обеспечивает полную герметизацию труб и дает 30-ти мм диапазон допуска соединения на внешнем диаметре трубы.

ОТВЕРСТИЯ ДЛЯ БОЛТОВ
Отверстия для болтов могут быть круглыми или квадратными.

БОЛТЫ
Болты при закручивании стягивают зажимные кольца, которые постепенно прижимают уплотнительные прокладки муфты к трубе.

КОНСТРУКЦИЯ КОРПУСА
Корпус хомута изготовлен из углеродистой стали, разработан согласно с функциональной длиной и диаметром трубы или раструба, чтобы полностью покрыть часть, предназначенную для ремонта.

БОКОВЫЕ ПЛАСТИНЫ
Пластины изготовлены из углеродистой стали, позволяют соединить две продольные части муфты DUOFIT, которая устраняет утечку в трубопроводе.

БОКОВАЯ УПЛОТНИТЕЛЬНАЯ ПРОКЛАДКА
Боковая прокладка с квадратным сечением сжимается между боковыми пластинами и обеспечивает герметичность по всей длине муфты DUOFIT.

ВЕРХНИЕ И НИЖНИЕ ОТВОДЫ
Отводы обеспечивают снижение давления в сети при монтаже муфты DUOFIT. Они также используются для того, чтобы проверить герметичность муфты DUOFIT после завершения монтажа.

ПРЯМОЙ ТИП
Прямой тип муфт DUOFIT применяется для ремонта прямых частей трубопровода.

СКРЕПЛЕНИЕ РАЗДЕЛЬНЫМИ КОРОТКИМИ БОЛТАМИ
Данная система затяжки болтов способствует улучшению центрирования муфты и повышению эффективности уплотнительной прокладки. 

DN: 300 - 2000
PN: 6 - 25
Номер PN Вариант 300 350 355 400 450 500 560 600 630 700 710 800 900 1000 1100 1200 1300 1400 1500 1600 1800 2000
DUOFIT D30 6, 25 Хомут из двух частей для ремонта и врезки
DUOFIT D10 6, 25 C цельными длинными болтами
DUOFIT D20-S 6, 25 C раздельными короткими болтами

Наш сайт использует cookie! Продолжая им пользоваться, Вы даёте своё согласие на использование персональных данных в соответствии с политикой конфиденциальности. Запретить сбор cookie можно в настройках браузера.